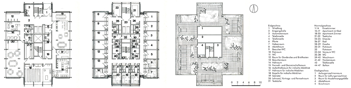
Grundrisse Erdgeschoss, Normalgeschoss und Dachgeschoss   Schwesternpersonalgebäude II, im Hintergrund Schwesternhaus I   Nordansicht   Ostansicht, 2010   Südseite, Detail der hinterlüfteten Fassade, 1967   Südseite, Detail der hinterlüfteten Fassade, 2010
Der bautechnische Zustand der Außenfassade befindet sich
auch 2010 in einem mangelfreien Zustand
  Einzelzimmer   Aufenthaltsraum Erdgeschoss  
Auftraggeber: Land Baden-Württemberg, vertreten durch Prof. Dr. h.c. Horst Linde, Finanzministerium Stuttgart und Oberbaudirektor Ulrich Werkle, Leiter des Universitätsbauamtes Heidelberg.

Wesentliche Mitarbeiter:
Dipl.-Ing. Architekt Klaus Unruh,
Dipl.-Ing. Architekt Rudolf Spitza.

  In den 50er und 60er Jahren gab es in Heidelberg eine extreme Wohnungsknappheit. Die Universität Heidelberg hatte Schwierigkeiten, insbesondere für die Universitätskliniken Fachkräfte im Pflegebereich zu bekommen.
Um den aus anderen Städten der Bundesrepublik kommenden Fachkräften eine Unterkunft zu bieten, wurden insgesamt 3 Personalwohngebäude mit jeweils 10 Geschossen gebaut.

  Circa 10 Jahre nach dem Schwestern- und Personalgebäude I wurde das zweite zehngeschossige Hochhaus für den gleichen Zweck errichtet. Die Ausstattung war inzwischen verbessert worden.
Jedes Zimmer hat eine eigene Dusche und WC sowie eine etwas größere Fläche.
  Auch das zweite Schwestern- und Personalgebäude ist geprägt durch die Betonwände an den Giebelflächen, die sprossenlosen Fenster der Wohnräume und die weißen Brüstungen. Diese sind inzwischen aus weiß beschichteten Aluminiumplatten. Hinter ihnen ist der Sonnenschutz untergebracht.
  Die Flachdachfläche sollte zur Freizeitgestaltung benutzt werden.
Aus dieser Funktion wurde die Dachrandgestaltung, das abgekantete Gesims und die Sonnenschutzelemente aus Stahlbeton abgeleitet, wodurch das Gebäude einen deutlichen und individuellen oberen Abschluss hat und nicht in der Beliebigkeit irgendeiner Geschossdecke endet.
  Im Erdgeschoss sind Gemeinschaftsräume und im Südteil ist eine ökumenische Kapelle untergebracht.
1999 wurde ein Teil des Erdgeschosses zu einer Schmerzambulanz umgebaut.
  Veröffentlichungen

"Bauen + Wohnen"
1970, Heft 8, Seite 300 - 304

"Deutsche Bauzeitschrift"
1970, Heft 9, S. 1641 - 1646
 

"Deutsche Bauzeitung"
1974, Heft 6, S. 552 + 553

"Architekturführer Heidelberg"
Bauten um 1000 - 2000
1998, S. 227
 

"Architektur im Wandel"
Architektenkammer Baden-Württemberg
Verlagshaus Reutlingen 2002, S. 24